Бульвар Дмитрия Донского
12 минут на транспорте
115 000 ₽/мес.
От года, комм. платежи включены (без счётчиков), комиссия 40%, залог 115 000 ₽
Идеальный вариант для тех, кто ценит комфорт, безопасность и природу, не отдаляясь от города. Всего 8 км от МКАД по Симферопольскому или Варшавскому шоссе.
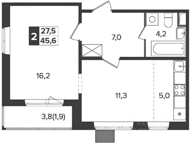
О квартире:
Евроремонт и полная готовность к проживанию. Практичная планировка: единая светлая зона кухни-гостиной-столовой с выходом на лоджию, просторный холл, изолированная спальня. Панорамные окна и лоджия с потрясающими видами на зеленые зоны поселка. Совмещенный санузел с джакузи. Установлена сплит-система во всей квартире (кондиционирование). Две лоджии. В наличии вся необходимая современная мебель и техника.
Расположение дома (ключевое преимущество!):
Квартира расположена в самом удачном доме поселка: 2 минуты пешком до магазинов и остановки транспорта, тихий закрытый внутренний двор без проездных дорог — спокойствие и уединение гарантированы.
Инфраструктура и безопасность поселка:
Высокий уровень безопасности: охраняемая территория, видеонаблюдение, патрулирование, въезд через два КПП по пропускам. Собственная школа и детский сад Гулливер на территории. Всё для жизни в шаговой доступности: супермаркеты, аптека, пекарня, кафе, салоны красоты, ателье. Спорт и отдых для всей семьи: детские и спортивные площадки, футбольное поле, теннисные корты, каток, площадки для пляжного волейбола, зоны для прогулок. Природа и релакс: собственное озеро с пляжной зоной, беседки, часовня, прогулочные зоны и закрытый участок соснового леса прямо на территории.
Дополнительные платежи:
Платежи за воду и электроэнергию оплачиваются отдельно по счетчикам.
Это не просто квартира, а готовое решение для комфортной и безопасной жизни в экологичном окружении с развитой инфраструктурой.
Агент-Анастасия Сдается элитная 2-комнатная квартира в городском округе Ленинском Московской области.




































































