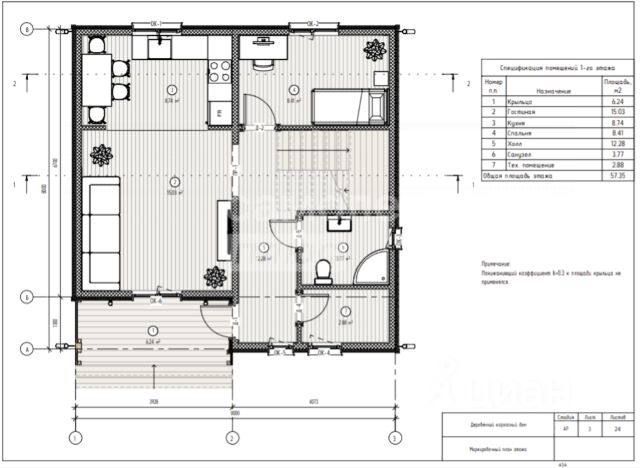
Продается просторный 2-х этажный дом (4 спальни) в селе Остров всего в 7 км от Москвы. О доме: • Общая площадь: 275 кв.м., включая террасы. Внутренняя площадь дома: 180 кв.м. Надежное капитальное строительство. Строили дом для себя, а НЕ на продажу. • Фундамент: ЖБИ плита (бетон по ГОСТу). • Стены: Блоки 400 мм. • Крыша: утепленная, четырехскатная, металлочерепица. • Окна: панорамные, немецкие стеклопакеты Rehau. Состояние: Закрытый тепловой контур (дом готов к финишной отделке по вашему дизайну). Планировка: • 1 этаж: большая кухня-гостиная, 1 спальня, санузел, котельная, кладовая, терраса. • 2 этаж: 3 спальни, санузел, прачечная, гардеробная, кладовая, балкон. Выход на балкон предусмотрен из всех спален. • Дополнительно: чердак для хранения вещей. Все комнаты изолированные, точные размеры комнат указаны на планировках. Коммуникации: • Электричество. • Вода: артезианская скважина. • Газ: договор уже заключен с Мособлгаз, осталось только купить оборудование и подключиться. В данный момент проходит активная газификация района. Ключевые преимущества и локация: • Всего в 7 км от Москвы. Прямой въезд в город по Бесединскому шоссе БЕЗ выезда на МКАД. • Дом расположен в селе Остров с постоянной пропиской. НЕ СНТ и НЕ коттеджный поселок. Без ежемесячных платежей и взносов. • Участки расположены в новой северной части села ближе к Москве. Уже почти все построились, вокруг только новые дома. К селу проложена асфальтированная дорога. • Рядом (в шаговой доступности) большой чистый пруд с благоустроенным песчаным пляжем, зоной отдыха и возможностью рыбалки. • В 1 км от дома находится река Москва и пристань, где планируется строительство яхт-клуба и гольф-клуба. Идеально подходит для большой семьи, которая хочет жить за городом, оставаясь при этом в непосредственной близости к Москве. О собственнике: Один хозяин. Быстрый выход на сделку.










































































