Добрый день! Продаём дом в КП "Измайлово" возле реки "Битца". 2км от Москвы!
Вашему вниманию предлагается Продуманный Просторный дом в УЕДИНЕННОМ охраняемом малонаселённом посёлке, который расположен вдоль реки "Битца".
• Свободная продажа. Покажем все документы! Собственник будет на сделке.
Описание и фото соответствуют действительности!
Дом подходит под ИПОТЕКУ.
- Вас ожидает регулярно Свежий Чистый воздух - дом находится в окружении леса, рядом река "Битца".
- В доме и посёлке преобладает тишина и умиротворение.
- Экологический чистая локация.
- Организовано ТСН.
ПРО ДОМ:
! Центральные коммуникации - Электричество (15 кВт); Водоснабжение; Канализация. В перспективе подвод магистрального газа в КП !
• Дом построен из газобетонных блоков в 2024 году под идею круглогодичного проживания.
• Общая площадь дома 222м²;
• Высокие потолки дарят ощущение лёгкости и умиротворения;
• 2 (Два) полноценных санузла. Один на 1ом этаже, второй на 2ом этаже;
• Дом имеет органичную планировку и правильные прямоугольные формы, что позволяет удобно расставить мебель и сделать функциональным каждый уголок!
ПРО УЧАСТОК:
• Общая площадь участка 570м²;
• Категория земель: Земли населенных пунктов;
• Виды разреш.строит.: ИЖС
• Кадастровый номер: 50:21:0030210:17596
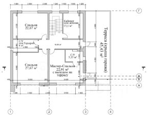
ПЛАНИРОВКА:
1ый этаж: Просторная гостиная; Кухня; Гардероб; Санузел; Котельная.
2ом этаж: Терраса; 4 (Четыре) спальни - одна из спален со своим санузлом и со своим выходом на террасу; Санузел; Гардероб.
• ГАРАЖ на 2 машиноместа.
ПРО ТРАНСПОРТ:
- 2 км от МКАД, удобный быстрый выезд;
- 6км от МСД, удобный быстрый выезд;
- 7км Варшавское шоссе, удобный быстрый выезд. И др.
- 3км. до МЦД "Битца";
- 3км. до электрички ст. "Булатниково";
- 10мин ходьбы до автобусной остановки;
ПРО ИНФРАСТРУКТУРУ:
! В 300 метрах магазин продуктов.
! Магнит в 10мин ходьбы.
- В 200 метрах Строительный магазин;
- В 250 метрах Салон красоты;
- В 400м. Баня, Банкетный зал, сауна;
- В 400м. Ресторан;
- В 450м. Клуб охотников и рыболовов;
- В 480м. Смотровая площадка;
- В 600 метрах Мойка Самообслуживания;
- В 800 метрах пункт выдачи Ozon;
- В 900 метрах Бутовская средняя образовательная ШКОЛА 1. Детский САД, ясли;
- В 1300 метрах База отдыха.
Проектом КП предусмотрены широкие дороги с лавочками, уличными фонарями и детской площадкой. Граничит с Бутовским лесопарком на юге и с Булатниковским прудом на севере.
Звоните! Ответим на все Ваши вопросы, расскажем подробнее, организуем оперативный показ, вживую дом не оставит равнодушным!