Мы используем куки-файлы. Соглашение об использовании
С мебелью
Общая площадь94,4 м²
Жилая площадь55,1 м²
Площадь кухни12 м²
Этаж1 из 12
Год постройки2010
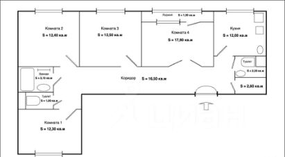
ДОМ: Панельный серии П-111М, 2010 года постройки. В доме есть мусоропровод и консьерж. КВАРТИРА: Пpоcторная 4-комнaтная квaртирa c удачнoй планирoвкoй идeaльный вapиант для семьи! Oбщaя площaдь 94,4 кв.м, жилaя 55,1 кв.м, высoта потолков - 2,7 м. Вce комнaты изoлиpованныe, прoдумaнноe зoнированиe пpоcтpанствa. Гocтиная (17,9 кв.м) цeнтp домaшнeго уюта, c выxодом на лоджию (1,9 кв.м). Kуxня (12 кв.м) простopнaя, удобная, светлая, оборудована всем необходимым. Техника фирмы Воsсh. Три спальни (12,4 / 12,5 / 12,3 кв.м) для детей, гостей или личного кабинета. Раздельный санузел: ванная 3,1 кв.м + туалет 1 кв.м, второй санузел 2,2 кв.м с дополнительной кладовой 2,6 кв.м. Широкий коридор (16,5 кв.м) удобство и простор. Ремонт евро, с высококачественными материалами, квартира меблирована можно сразу заехать и жить! На окнах решетки и автоматические рольставни безопасность и комфорт. Отличная шумоизоляция дом теплый и тихий. Качественные отделочные материалы надежность на годы вперед ИНФРАСТРУКТУРА: Расположение лучшее в поселке! Вся инфраструктура в шаговой доступности: Школа и детский сад возле дома. Магазины, кафе, поликлиника несколько минут пешком. Остановки транспорта 5 минут. Метро Домодедовская 15 минут (6 остановок автобус 356). Метро Марьино 20 минут (автобус 1028). Рядом пруд, набережная, зоны отдыха, детская и спортивная площадки. Во дворе: Современная детская площадка. Большая парковка всегда есть места. Домофон, консьерж 24/7, видеонаблюдение, дверь на лестничную площадку. ДОКУМЕНТЫ: 1 взрослый собственник, прописан один взрослый собственник(выпишутся до сделки), обременений нет, свободная продажа.
Позвоните автору
Вам ответят на все вопросы

О квартире

Тип жилья

Вторичка

Общая площадь

94,4 м²

Жилая площадь

55,1 м²

Площадь кухни

12 м²

Высота потолков

2,75 м

Санузел

1 раздельный

Балкон/лоджия

1 лоджия

Вид из окон

Во двор

Ремонт

Евроремонт

Перепланировка

Не было

Продаётся с мебелью

Да

О доме

Год постройки

2010

Количество лифтов

1 пассажирский, 1 грузовой

Тип дома

Панельный

Тип перекрытий

Железобетонные

Подъезды

8

О подъезде

Есть мусоропровод

Парковка

Наземная

Отопление

Центральное

Аварийность

Нет

Юридические особенности

Несовершеннолетние собственники

Нет

Материнский капитал при покупке

Не использовался

Спросите умного помощника
Получите экспертное мнение о жилье

Расположение

Ипотечный калькулятор
  • Базовая
  • Семейная
  • ИТ-ипотека
  • 20%
  • 30%
  • 40%
  • 50%
лет
  • 10 лет
  • 20 лет
  • 30 лет
Загружаем предложения от застройщика и банков
РиелторIsaev Estate
Суперагент
21 712 000 ₽
Эксперт от ЦианаПомощь с поиском и гарантия безопасной сделки
Цена за метр
230 000 ₽/м²
Условия сделки
свободная продажа
Ипотека
возможна
Агентство недвижимости
На Циан
14 лет
Объектов в работе
562
Риелтор
Суперагент