Мы используем куки-файлы. Соглашение об использовании
Только на Циан
Общая площадь39,4 м²
Жилая площадь20 м²
Площадь кухни5 м²
Этаж2 из 17
Год постройки2017
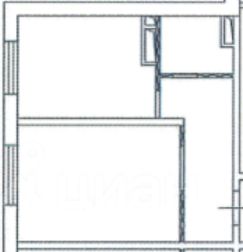
Уютная небольшая квартира для полноценной семьи. По проекту была однокомнатной, применено крайне необычное и, на мой взгляд, гениальное решение, позволяющее иметь 2 полноценные изолированные спальные зоны. В итоге имеем спальню/детскую со встроенной мебелью (включает 2 односпальные шкаф-кровати) и вторую комнату, которую можно использовать и как гостиную и как спальню. Зона кухни совмещена с коридором, стоит небольшой гарнитур, покупала его как временный, но планы изменились. В коридоре просто огромный шкаф-купе по индивидуальному чертежу, дверцы зеркальные, что сильно расширяет пространство. Ремонт делала при заезде, в настоящий момент стены поистрепались, требуют обновления. Санузел совмещённый, установлена ванна и хорошая инсталяция. Второй этаж. Окна выходят на улицу, есть козырёк, по нему любила гулять моя кошка. Район молодой, динамично развивающийся.Соседи в доме - самые лучшие на свете!!! Это прям община единомышленников, вместе гуляют, вместе решают жк проблемы, вместе отмечают праздники.. чудесные просто!
Позвоните автору
Вам ответят на все вопросы

О квартире

Тип жилья

Вторичка

Общая площадь

39,4 м²

Жилая площадь

20 м²

Площадь кухни

5 м²

Высота потолков

2,7 м

Санузел

1 совмещенный

Вид из окон

На улицу

Ремонт

Дизайнерский

О доме

Год постройки

2017

Строительная серия

П-111М

Количество лифтов

1 пассажирский, 1 грузовой

Тип дома

Панельный

Тип перекрытий

Железобетонные

Подъезды

8

О подъезде

Есть мусоропровод

Парковка

Наземная

Отопление

Центральное

Аварийность

Нет

Спросите умного помощника
Получите экспертное мнение о жилье

Расположение

Ипотечный калькулятор
  • Базовая
  • Семейная
  • ИТ-ипотека
  • 20%
  • 30%
  • 40%
  • 50%
лет
  • 10 лет
  • 20 лет
  • 30 лет
Загружаем предложения от застройщика и банков
СобственникID 93707849
    7 700 000 ₽
    Эксперт от ЦианаПомощь с поиском и сделкой
    Цена за метр
    195 431 ₽/м²
    Условия сделки
    свободная продажа
    Ипотека
    возможна
    СобственникID 93707849