Мы используем куки-файлы. Соглашение об использовании
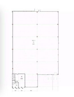
Площадь3 140,33 м²
Этаж1 из 2
Сетка колонн18х24
Выс. потолков10.0 м.
Отчёт о привлекательности объектаУзнайте, насколько помещение и район подходят для вашего бизнеса
Что входит в отчёт
  • Охват населения
  • Пешеходный трафик
  • Автомобильный трафик
  • Средний бюджет семьи по району
  • Арендные ставки рядом
  • Точки притяжения
  • Конкуренты в радиусе 1 км
  • Рекомендации по выбору места для бизнеса
968599. Предлагается производственно-складское помещение общей площадью 3 140,33 кв. м. формата Лайт Индастриал в цифровом индустриальном парке Титан ЛЕНИНСКИЙ. Блок U1 бокс 2. Преимущества: 1 км от трассы М-4, вблизи с г,Видное. 10 км от МКАД, в 30 км от ЦКАД. 5 мин. на автобусе (2 км) до пл. "Расторгуево". Общая площадь парка 85 000 м2. 1 этаж. Объект прошел сертификацию ассоциации по уровню готовности зданий к облачным подключениям и соответствию стандартам цифровой экономики. Парки Индастриал Сити подключены к мощным центрам обработки данных, имеют высокий уровень надежности и безопасности. Готовая инженерная инфраструктура. Оборудованные парковочные места. Доступ к производственно-складским помещениям 24/7. Комплексная эксплуатация объектов. Охраняемая территория. Въезд на территорию бесплатный (цена входит в охрану). Земельный участок под помещением выделяется и передается в собственность. Технические характеристики: Площадь блока - 3 140,33 кв.м. Площадь производственная: 2 812.16 кв. м. Площадь офиса: 328.17 кв.м. Шаг колонн: 18х24 м. Высота потолка: 10 м - рабочая, до низа металлоконструкций, 12 м - до потолка. Ворота - доковые 2 шт. Нагрузка на пол: 6 т/м². Мощность - 150 кВт, возможно увеличение. Количество грузовых парковочных мест - 2, легковых - 3. Сдача - 4 кв. 2026 г. Возможно приобретение в ипотеку. Так как корректный адрес отсутствует на Яндекс.Картах, введен ближайший.
lock

Войдите или зарегистрируйтесь
для просмотра информации

Просматривайте условия сделки и всю информацию об объекте
Сохраняйте фильтры в поиске и не вводите заново
Доступ к избранному с любого устройства
Неограниченное добавление в избранное
Позвоните автору
Вам ответят на все вопросы
Остались вопросы по объявлению?
Позвоните владельцу объявления и уточните необходимую информацию.
  • Инфраструктура
  • Похожие рядом
  • Год постройки2026
  • Тип зданияСкладской комплекс
  • Категория зданияСтроящееся
  • Общая площадь6 280 м²
Центральное отопление
Спринклерная система пожаротушения
Помощь надёжных риелторов
Риелтор партнёр Циан поможет купить или продать любую недвижимость
549 559 194 ₽
7 346 253 $
6 253 334
Цена за метр
175 001 ₽
Налог
НДС включен: 99 100 838 ₽
Агентство недвижимости
Документы проверены