Мы используем куки-файлы. Соглашение об использовании
Площадь6 044,3 м²
Этаж4 из 4
ПомещениеСвободно
Отчёт о привлекательности объектаУзнайте, насколько помещение и район подходят для вашего бизнеса
Что входит в отчёт
  • Охват населения
  • Пешеходный трафик
  • Автомобильный трафик
  • Средний бюджет семьи по району
  • Арендные ставки рядом
  • Точки притяжения
  • Конкуренты в радиусе 1 км
  • Рекомендации по выбору места для бизнеса
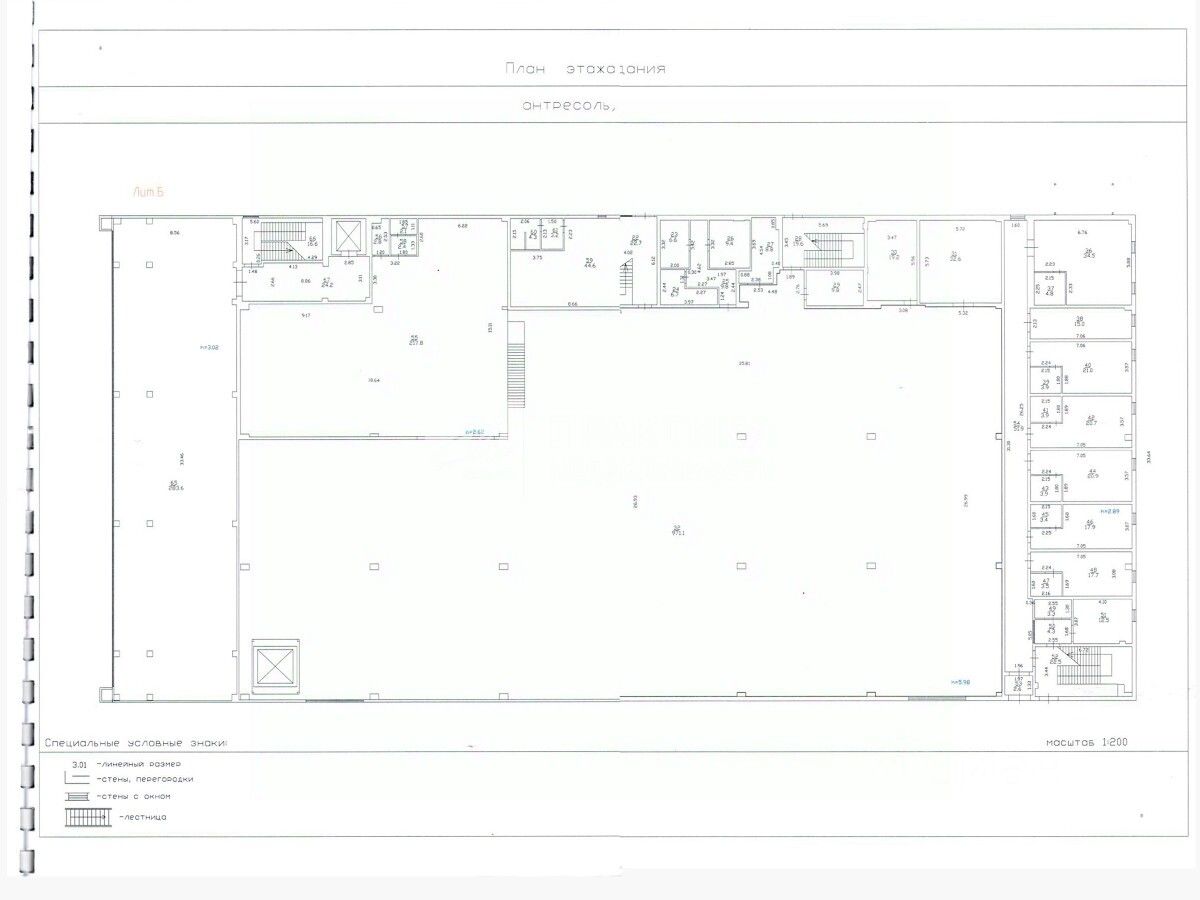
Код объекта: 2129036. О ПОМЕЩЕНИИ Общественные и проходные зоны выполнены с качественным современным ремонтом. Парадный вход и входная группа оформлены аккуратно и сдержанно. В коридорах и лобби использованы износостойкие материалы, плитка и яркое освещение. Организована зона ресепшена. Помещения выглядят ухоженными и подходят для приёма клиентов и партнёров. ТЕХНИЧЕСКОЕ ОСНАЩЕНИЕ: Здание обеспечено всеми необходимыми инженерными коммуникациями. Подключены газ, центральная канализация и ливневая система. На территории расположены две собственные трансформаторные подстанции мощностью 630 и 400 кВт. Электрическая мощность составляет 855 кВт, что позволяет размещать энергоёмкие производственные линии. ЖИЛАЯ ЗОНА: В здании выделена отдельная зона для проживания — 21 номер со всеми удобствами и отдельными входами. Такая организация особенно удобна для вахтового метода работы и круглосуточного производства. Кроме того, на территории предусмотрены кухни и большая столовая, где можно комфортно разместить большое количество сотрудников. 1 этаж Общая информация • 2 крупных помещения: 971,1 м²и 314,9 м² • 7 жилых комнат • Множество малых помещений • Коридоры, лестницы, лифтовые иобщие зоны: 400500 м² 3 этаж Общая информация • 2 больших помещение: 1242,1 м² и 313,1 м² • 6 жилых комнат • Множество малых помещений • Коридоры, лестницы, лифтовые и общие зоны 4 этаж Общая информация • 2 больших помещения: 1734,9 м² и 213,5 м² • 1 жилая комната • Множество малых помещений • Коридоры, лестницы, лифтовые и общие зоны Антресоль Общая информация • 2 больших помещения: 971,1 м² и 283,6 м² • 7 жилых комнат • Множество малых помещений • Коридоры, лестницы, лифтовые и общие зоны Плюсы — около 10 км до МКАД — удобный выезд на Каширское шоссе и основные транспортные магистрали — комфортный подъезд для фур испецтехники — отсутствие плотной жилой застройки и ограничений по шуму
lock

Войдите или зарегистрируйтесь
для просмотра информации

Просматривайте условия сделки и всю информацию об объекте
Сохраняйте фильтры в поиске и не вводите заново
Доступ к избранному с любого устройства
Неограниченное добавление в избранное
Позвоните автору
Вам ответят на все вопросы
Остались вопросы по объявлению?
Позвоните владельцу объявления и уточните необходимую информацию.
  • Инфраструктура
  • Похожие рядом
  • Год постройки2019
  • Общая площадь6 044,3 м²
Центральное отопление
Помощь надёжных риелторов
Риелтор партнёр Циан поможет купить или продать любую недвижимость
790 000 000 ₽
10 387 425 $
8 814 446
Цена за метр
130 702 ₽
Налог
УСН
Агентство недвижимости
Риелтор
Суперагент
4,6・119