Мы используем куки-файлы. Соглашение об использовании
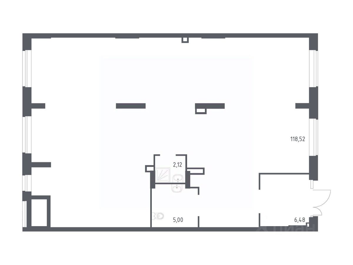
Помещение свободного назначения, 132,12 м²
Площадь132,12 м²
Этаж1 из 17
Отчёт о привлекательности объектаУзнайте, насколько помещение и район подходят для вашего бизнеса
Что входит в отчёт
  • Охват населения
  • Пешеходный трафик
  • Автомобильный трафик
  • Средний бюджет семьи по району
  • Арендные ставки рядом
  • Точки притяжения
  • Конкуренты в радиусе 1 км
  • Рекомендации по выбору места для бизнеса
Прямая аренда от застройщика, без посредников и дополнительных комиссий. Предлагается помещение свободного назначения на 1-м этаже современного жилого комплекса "Пригород Лесное". Потенциальная аудитория района: 140 000 человек. Технические характеристики помещения: - Помещение свободного назначения, расположено на 1-м этаже для возможности использования широкого спектра бизнесов: от розничной торговли, сферы услуг, студий, до пунктов маркетплейса и точек общественного питания; - Высокие потолки от 4 метров, позволяющие эффективно использовать пространство; - Отдельные входные группы с улицы; - Витринные окна и вывеска - отличная визуальная доступность и возможность размещения рекламы и маркетинга своего бренда; - Свободная планировка, возможность адаптировать пространство под конкретные задачи бизнеса; - Помещение без отделки (Shell&Core) - вы создаете интерьер под свой бренд и формат; - Новые инженерные коммуникации - отопление, водоснабжение, канализация, электричество. Предоставляются арендные каникулы на въезд и ремонт. Гибкие условия обсуждаются индивидуально. Презентация предоставляется по запросу.
lock

Войдите или зарегистрируйтесь
для просмотра информации

Просматривайте условия сделки и всю информацию об объекте
Сохраняйте фильтры в поиске и не вводите заново
Доступ к избранному с любого устройства
Неограниченное добавление в избранное
Позвоните автору
Вам ответят на все вопросы
Остались вопросы по объявлению?
Позвоните владельцу объявления и уточните необходимую информацию.
  • Инфраструктура
  • Похожие рядом

ЖК «Пригород Лесное»

  • ДевелоперГруппа «Самолет»
  • Тип зданияЖилой комплекс
  • Общая площадь132,12 м²
Помощь надёжных риелторов
Риелтор партнёр Циан поможет купить или продать любую недвижимость
267 583 ₽/мес.

Прямая аренда (от года)

3 758 $/мес.
3 242 /мес.
Цена за метр
24 304 ₽ в год
Налог
НДС включен: 48 252 ₽
Комиссия
нет
Коммунальные платежи
не включены
Эксплуатационные расходы
не включены
Агентство недвижимости
На Циан
менее года
Объектов в работе
82