Мы используем куки-файлы. Соглашение об использовании
Площадь235 м²
Этаж1 из 2
Отчёт о привлекательности объектаУзнайте, насколько помещение и район подходят для вашего бизнеса
Что входит в отчёт
  • Охват населения
  • Пешеходный трафик
  • Автомобильный трафик
  • Средний бюджет семьи по району
  • Арендные ставки рядом
  • Точки притяжения
  • Конкуренты в радиусе 1 км
  • Рекомендации по выбору места для бизнеса
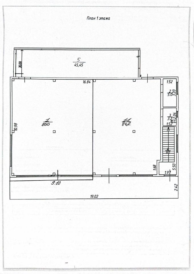
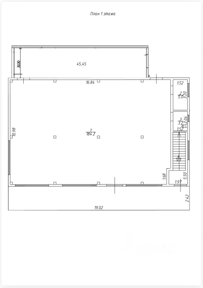
Предлагаем Вашему вниманию отдельно стоящее здание расположенное по адресу: Московская область Ленинский Г.О., Расторгуевское шоссе д.5 Здание расположено на трассе с большим трафиком, имеет фасад на который возможно использовать в качеств е меди рекламы. Прилегающие районы ЖК Видный город, Усадьба Суханово, Государев дом, поселки с индивидуальной застройкой Лопатино, Суханово, Расторгуево, Федюкова и тд.Здание 50:21:0090202:1425 капитальное в собственности построено и зарегистрировано в 2014году. Площадь 446 м.кв., плюс пристройка, итого общая площадь 536 кв. м., площадь первого этажа 240 кв.м., площадь второго этажа 296 кв. м., (поэтажный план прилагается). Здание имеет 4 входа, имеется зона разгрузки с задней стороны здания.Здание 50:21:0090202:1425 капитальное в собственности построено и зарегистрировано в 2014году. Площадь 446 м.кв., плюс пристройка, итого общая площадь 536 кв. м., площадь первого этажа 240 кв.м., площадь второго этажа 296 кв. м., (поэтажный план прилагается). Здание имеет 4 входа, имеется зона разгрузки с задней стороны здания. Здание 50:21:0090202:1425 капитальное в собственности построено и зарегистрировано в 2014году. Площадь 446 м.кв., плюс пристройка, итого общая площадь 536 кв. м., площадь первого этажа 240 кв.м., площадь второго этажа 296 кв. м., (поэтажный план прилагается). имеется зона разгрузки с задней стороны здания. Назначение здания Магазин, Общественное питание, возможны внесения других назначений. Земельный участок 50:21:0090212:2813площадью 600 кв.м., в аренде на 49 лет до 2064года. Отопление - магистральный газ, своя котельня. Электричество - 100 кВт. Вода собственная скважина 86 метров, система фильтрации. Канализация - септик, с водоотведением. Центральная канализация - ведется строительство, подключение 3 квартал 2026г. Парковка гостевая на 12 машино-мест, парковка для сотрудников 10 машино-мест Лицензия на Алкоголь здание соответствует параметрам и условиям для получения. Имелась лицензия у приводящего арендатора (Кафе РуПицца)
lock

Войдите или зарегистрируйтесь
для просмотра информации

Просматривайте условия сделки и всю информацию об объекте
Сохраняйте фильтры в поиске и не вводите заново
Доступ к избранному с любого устройства
Неограниченное добавление в избранное
Позвоните автору
Вам ответят на все вопросы
Остались вопросы по объявлению?
Позвоните владельцу объявления и уточните необходимую информацию.
  • Инфраструктура
  • Похожие рядом
  • Площадь участка0 сот.
  • Общая площадь235 м²
Приточная вентиляция
Местное кондиционирование
Автономное отопление
Сигнализация
Помощь надёжных риелторов
Риелтор партнёр Циан поможет купить или продать любую недвижимость
Автор объявления
ID 20285871
  • 7 лет 5 месяцев на Циане
  • 587 500 ₽/мес.

    Прямая аренда (от года), минимальный срок аренды 11 месяцев, доступны арендные каникулы, предоплата за 1 месяц

    7 797 $/мес.
    6 650 /мес.
    Цена за метр
    30 000 ₽ в год
    Налог
    УСН
    Комиссия
    10%
    Коммунальные платежи
    не включены
    Эксплуатационные расходы
    не включены
    Автор объявления
    ID 20285871