Мы используем куки-файлы. Соглашение об использовании
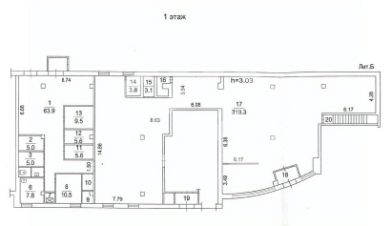
Площадь464,6 м²
Этаж1 из 5
Отчёт о привлекательности объектаУзнайте, насколько помещение и район подходят для вашего бизнеса
Что входит в отчёт
  • Охват населения
  • Пешеходный трафик
  • Автомобильный трафик
  • Средний бюджет семьи по району
  • Арендные ставки рядом
  • Точки притяжения
  • Конкуренты в радиусе 1 км
  • Рекомендации по выбору места для бизнеса
934202. Предлагаем торговую площадь с якорным арендатором "Дикси" в бизнес-центре "Капитал Плаза", площадью 464.6 кв. м, расположенное на первом этаже 5-этажного здания. Преимущества объекта: -первая линия ул. Заводская; -6 минут на автомобиле от ж/д станции "Расторгуево"; -удобная транспортная доступность: 1.7 км до Белокаменного шоссе, 3.3 км до трассы М-4 Дон, 4.5 км до МКАД, 4.8 км до Каширского шоссе; -плотный жилой массив; -развитая инфраструктура района; -высокий автомобильный и пешеходный трафик; -объект отлично просматривается, находится в легком доступе для клиентов; -гибкая планировка, позволяющая адаптировать пространство под различные нужды; -витринное остекление; -место для вывески; -зона разгрузки/погрузки; -наземная парковка. Технические параметры объекта: -отдельный вход с фасада; -электрическая мощность: 60 кВт; -высота потолков: 3.03 м. Свяжитесь с нами для получения дополнительной информации!
lock

Войдите или зарегистрируйтесь
для просмотра информации

Просматривайте условия сделки и всю информацию об объекте
Сохраняйте фильтры в поиске и не вводите заново
Доступ к избранному с любого устройства
Неограниченное добавление в избранное
Позвоните автору
Вам ответят на все вопросы
Остались вопросы по объявлению?
Позвоните владельцу объявления и уточните необходимую информацию.
  • Инфраструктура
  • Похожие рядом
Помощь надёжных риелторов
Риелтор партнёр Циан поможет купить или продать любую недвижимость
800 000 ₽/мес.

Прямая аренда (от года)

11 209 $/мес.
9 559 /мес.
Цена за метр
20 663 ₽ в год
Налог
УСН
Комиссия
нет
Коммунальные платежи
не включены
Эксплуатационные расходы
не включены
Агентство недвижимости
Документы проверены