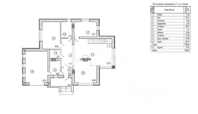
Код объекта: 1235469. В охраняемом коттеджном поселке расположенном полностью в лесном массиве, представлен современный, капитальный дом 312,1 кв.м. внешне под ключ, внутри без отделки. Архитектурная поэма. Изюминкой дома являются на первом этаже дома большая гостиная со вторым светом, а на втором шикарный зимний сад. Грамотная планировка в сочетании со вторым светом и большими панорамными окнами rehau с тонировкой, придают дому особый колорит. Высокое качество материалов и работ. На участке с лесными деревьями, преимущественно дубами 15,84 соток. Поэтажный план: 1 этаж: тамбур; холл 14,3 кв.м.; гардеробная; гостиная 33,78 кв.м. кухня столовая 18,9 кв.м.; гостевая 20 кв.м.; ванная 7 кв.м.; кабинет 13,5 кв.м. ; гараж 28,75 кв.м.; бойлерная. 2 этаж: холл 22,42 кв.м.; спальня 20 кв.м.; ванная 7 кв.м.; спальня 18,4 кв.м.; ванная 13,5 кв.м.; спальня 13,4 кв.м.; зимний сад 43 кв.м. Коммуникации: эл-во, магистральный газ, центральный водопровод, центральная канализация, интернет. Инфраструктура: Детская и спортивная площадки. Торговый центр площадью 2000 кв.м. (сетевые магазины, фитнес клуб, и т.д.) В шаговой доступности ресторан, магазины, сетевая частная школа 11 лет обучения с детским садом, пиццерия, пекарня, салон красоты, сауна. В Горках Ленинских два детских сада, сетевые магазины, химчистка, мед.амбулатория. Транспортная доступность: Проезд общественным транспортом до метро Домодедовская. Природа: Если вы желаете по настоящему насладиться чистым воздухом загородом в Подмосковье, проживая в окружении векового леса, где можно полноценно насладиться красотой природы, дышать чистым воздухом, высыпаться, и полноценно отдыхать. К поселку примыкает лесной массив, а также лес относящийся к историческому музею заповеднику Горки Ленинские, в котором есть великолепный пейзажный усадебный парк, создававшийся с 18 века и сохранившийся на сегодняшний день. Прекрасное место для жизни и отдыха в Подмосковье, тишина и покой загордной жизни. Идеально для пмж. Один собственник. Обременений нет! Год постройки 2023. Без мебели. Россия, Московская область, Ленинский городской округ, посёлок Мещерино, микрорайон Южные Горки - 3


















































































