179 804 ₽/м²
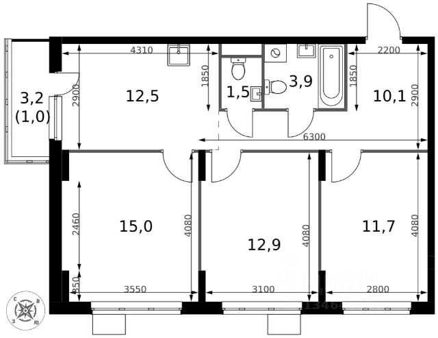
ДОПОЛНИТЕЛЬНАЯ СКИДКА ДО 10% В ОФИСЕ ПРОДАЖ! Прямая продажа от застройщика! Жилой Комплекс класса Комфорт Плюс. Продаётся 3-к квартира номер 481 общей площадью 84.3 кв.м. на 24-м этаже 24 этажного здания. Отделка Whitebox. Цена с учётом скидки. Особенности квартиры: - МЦД-5 в пешей доступности - Квартал с собственной набережной - Свои 2 детских сада и школа - Просторная спальня, в которой можно разместить большую кровать. - Гостевой санузел - комфорт и удобство для ваших гостей. - Увеличенная высота потолков - ощущение простора и легкости. - Просторная кухня - место для семейных ужинов и кулинарных экспериментов. - Просторная мягкая зона - комфорт и уют для отдыха всей семьи. - Гардеробная - удобство для хранения и организации вещей. - Ниша под шкаф - компактное и удобное место для вещей. - Лоджия - уютное место для отдыха и тишины. Квартира с предчистовой отделкой (White box). Вам не придется заниматься черновыми и трудоёмкими работы, а чистовую отделку и дизайн - сделайте на свой вкус. Информация о комплексе: Комплекс 1-й Донской расположен в 7 км от МКАД по трассе М-4 Дон. В нем сочетаются все плюсы комфортной городской среды и природного окружения. В проекте достаточно большой процент квартир, выходящих на 2-3 стороны света. Секции-маяки формируют у зданий визуальную L-форму, что придает застройке структуру и ритмику объемов. На ощущение динамики работает и разная этажность зданий. Теплая цветовая палитра фасадов отражает природу Дона. Вечерами дома преображаются благодаря архитектурной подсветке, выгодно выделяясь на городском фоне. Природа оказывает положительное влияние на человека на всех уровнях восприятия: через зрение, запахи, звуки, тактильные ощущения. Неподалеку от ЖК Первый Донской: Ермолинский парк, Видновский лесопарк, Жуковский парк Транспортная доступность: Комплекс удобно расположен в 7 км от МКАД по трассе М-4 Дон (через Видное). Расстояние до Каширского шоссе составляет 12 км. Добраться до метро и центра Москвы позволяет развитая сеть маршрутов общественного наземного транспорта. Действующая ж/д станция Калинина Павелецкого направления в 15-17 минутах ходьбы (МЦД-5 в 2025-2026 гг). Внутренняя инфраструктура: Проект 1-й Донской соседствует с бурно развивающимся районом, основная инфраструктура которого уже сложилась. В строительстве современных жилых комплексов в округе есть свои плюсы: здесь формируется продуманная и комфортная городская среда. Что касается внутренней инфраструктуры, на территории квартала будут расположены собственные муниципальные 2 детских садика и школа, которые помогут совместить приятное с полезным. Территория комплекса пронизана целой сетью живописных пешеходных маршрутов, позволяющих попасть в любой уголок района. Основные пути, как водится, "торговые". Они проходят вдоль магазинов, кафе и других представителей коммерции и отделяются от проезжей части зеленой "фито" - стеной. Среди крупных социальных объектов предусмотрены своя поликлиника и торговый центр




















































































